Bilocale in vendita

Roma, viale Alessandrino - Alessandrino
€ 145.000
2 locali 2 locali
65 Mq 65 Mq
1 bagno 1 bagno

Bilocale in vendita

Roma, viale Alessandrino - Alessandrino

Descrizione annuncio

Una casa vera, al centro del tuo quartiere. Su Viale Alessandrino.

Nel cuore pulsante di Alessandrino, direttamente su Viale Alessandrino – la via principale che dà nome al quartiere – ti presentiamo un appartamento che unisce posizione, funzionalità e quel senso di “casa” che si percepisce fin dal primo sguardo.

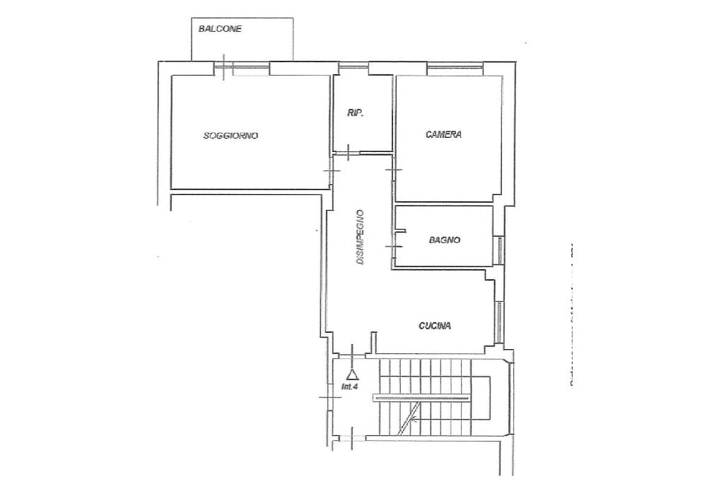
Al primo piano di una palazzina curata, questa soluzione si apre su un soggiorno luminoso con angolo cottura, che rende ogni momento conviviale, semplice e naturale. Un disimpegno funzionale conduce alla zona notte, composta da due camere da letto, comode e versatili, pronte ad accogliere progetti, famiglia, ospiti o uno spazio dedicato al lavoro. Il bagno è finestrato, moderno e ben rifinito, mentre il ripostiglio interno risolve ogni problema di gestione quotidiana.

A completare il quadro, un balcone riservato, perfetto per goderti l’aria aperta nel cuore della città.

Vivere qui significa avere tutto a portata di mano: scuole, negozi, trasporti, servizi, parchi. Ogni spostamento diventa facile, ogni esigenza quotidiana trova risposta immediata. Ed è proprio questa la vera forza di una casa su Viale Alessandrino: non devi adattarti, perché è già tutto al posto giusto.

Questa casa è l’ideale per chi cerca una prima casa solida, per chi vuole investire in una zona viva e sempre richiesta, o per chi desidera ritagliarsi uno spazio tutto suo in una posizione che fa la differenza.

Contattaci per fissare la tua visita.
Una casa è fatta di muri, luce e persone. Ma una buona posizione la rende anche un investimento.

Gli appuntamenti di visita inizieranno sempre nel nostro ufficio. E' necessario alla sottoscrizione di: schede segnalazione immobili, privacy, antiriciclaggio, identificazione e copia dei documenti d'identità del cliente che effettua la visita (oltre gli adempimenti dovuti, anche i nostri clienti venditori vogliono sapere chi entrerà all'interno delle loro case).

Mostra tutto

Nelle vicinanze

Trasporto pubblico Trasporto pubblico
Alessandrino
Alessandrino
230 m
Torre Spaccata
Torre Spaccata
720 m
Centocelle
Centocelle
1,5 Km
Balzani
Balzani
2,3 Km
Centocelle
Centocelle
1,5 Km
Ricariche auto elettriche Ricariche auto elettriche
Eneldrive Autorimessa Primula
1,8 Km
Eneldrive Cinecittà
2,4 Km
YouGo Prenestina | EnelX
2,5 Km
Esselunga Prenestino
2,8 Km
Scuole Scuole
Scuola Primaria F. De Sanctis
750 m
Scuole
1,1 Km
Collegio Universitario Lamaro-Pozzani
1,3 Km
scuola elementare Renzo Pezzani
1,4 Km
scuola elementare Fausto Cecconi
1,4 Km
Farmacia Farmacia
Farmacia
480 m
Farmacia D’Isanto
790 m
Farmacia Tanzini
890 m
Zamponi
1,2 Km
Farmacia Dr. Eletti
1,4 Km
Ospedali Ospedali
Ambulatorio Policlinico Casilino – Edificio D
930 m
Policlinico Casilino
940 m
Casa di riposo Bruno Buozzi
1,1 Km
Farmacia Berna
1,6 Km
Ospedali
1,8 Km
Supermercati Supermercati
Carrefour Market
220 m
Superconti Roma Sisenna
490 m
Lidl Casilina
720 m
Supermercato Emme Più
870 m
Lidl
970 m
Negozi Negozi
Dimensione Outlet
330 m
Pane Zucchero e Sale
970 m
Conad
1,2 Km
Negozi
1,3 Km
Pan di Zenzero
1,3 Km
Bar Bar
Bar Delle Favole
880 m
Terzo Tempo
970 m
medcafè
1,0 Km
Bar
1,4 Km
Bar Pasticceria Rosticceria Tavola Calda
1,8 Km
Ristoranti Ristoranti
La Pinsa de li Dei
60 m
San Giorgio
100 m
Capanna Pizza
280 m
Millennium Center
690 m
La Carovana Pazza
700 m
Mostra tutto

Caratteristiche

Rif.:
61113401
Piano:
1 di 4 (Piano basso)
Balconi:
1
Camere da letto:
1
Arredamento:
Completo
Condizionamento:
Autonomo
Mostra tutto
Prezzo Prezzo
€ 145.000
Rata mutuo Rata mutuo
€ 683 / mese
Spese annue Spese annue
€ 720
Proponi il tuo prezzoProponi il tuo prezzo

Classe Energetica

G
G
G
G
G
G
G
G
G
EP globale non rinnovabile:
189.00 kW h/m² anno
EP globale rinnovabile:
189.00 kW h/m² anno
Anno di costruzione:
1967
Riscaldamento:
Autonomo
Tipo impianto:
Ad aria
Tipo alimentazione:
Metano

Ti interessa visionare l'immobile?

Fissa un appuntamento  Fissa un appuntamento

Richiedi informazioni

Clicca su Leggi per aprire l'informativa
* Questi campi sono obbligatori

Calcola il tuo mutuo

Semplice e senza impegno
Anticipo

( % )
Mutuo

( % )

pochi semplici passi

inserisci i tuoi dati
Questionario completato
Grazie per aver richiesto un appuntamento senza impegno con un nostro Consulente del Credito e Assicurativo.

Hai inserito correttamente tutti i dati necessari e a breve riceverai una e-mail con un link da convalidare per inviare i tuoi dati.
Affiliato
Mediazioni Alessandrino 2 Srl
Viale Alessandrino, 233 00172 Roma (RM)

Il nostro staff


  • Adam Bourzaim
    Collaboratore

  • Ayoub Bourzaim
    Collaboratore

  • Maichel Di Guglielmo
    Collaboratore

  • Luca Pelfini
    Affiliato

  • Alessandro Pinna
    Responsabile

  • Aisha Perra
    Coordinatrice

  • Gianluca Scipioni
    Collaboratore
Viale Alessandrino, 233 00172 Roma (RM)
Zona: Alessandrino
Mostra su mappa
Orari: Dal Lunedì al Venerdì 09:30 - 13:00 / 15:30 - 20:00. Sabato 09:30 - 13:00 / 15:30 - 18:30
Affiliato
Mediazioni Alessandrino 2 Srl
Viale Alessandrino, 233 00172 Roma (RM)

2026 Tecnocasa Franchising S.p.A. - P. IVA 08365160152 - Via Monte Bianco 60/A 20089 Rozzano (MI). Ogni agenzia ha un proprio titolare ed è autonoma. Privacy policy | Policy utilizzo | Cookie policy