Bilocale in vendita

Roma, Via delle Begonie - Alessandrino
€ 149.000
2 locali 2 locali
65 Mq 65 Mq
1 bagno 1 bagno

Bilocale in vendita

Roma, Via delle Begonie - Alessandrino

Descrizione annuncio

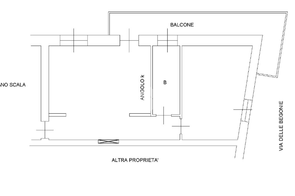
Appartamento in Vendita – Via delle Begonie, Centocelle

Si vende attualmente affittato con contratto fino a maggio 2027.

Cerchi un’opportunità sicura in una delle zone più richieste di Centocelle? Questo appartamento potrebbe essere esattamente ciò che stai cercando.
A soli 5 minuti dalla metro C Parco di Centocelle, in una via tranquilla ma ben collegata, trovi un primo piano di 65 mq perfettamente distribuiti, ideale per chi desidera mettere a reddito un immobile già locato.

La casa si apre su un ampio salone con angolo cottura, perfetto per creare un ambiente conviviale e funzionale. La camera da letto è spaziosa, il bagno è finestrato e dotato di un comodo soppalco, utile per ottimizzare ogni centimetro. Completa la proprietà un balcone che dona luce e ariosità all’appartamento.

Un’opportunità di investimento concreta, già a reddito e pronta per garantire da subito stabilità e rendimento.

Se cerchi un immobile da mettere a reddito con contratto a canone concordato, questa è la soluzione giusta.
Chiamaci ora per tutte le informazioni e per fissare un appuntamento: le migliori occasioni non restano disponibili a lungo!

Gli appuntamenti di visita inizieranno sempre nel nostro ufficio. E' necessario alla sottoscrizione di: schede segnalazione immobili, privacy, antiriciclaggio, identificazione e copia dei documenti d'identità del cliente che effettua la visita (oltre gli adempimenti dovuti, anche i nostri clienti venditori vogliono sapere chi entrerà all'interno delle loro case).

Mostra tutto

Nelle vicinanze

Trasporto pubblico Trasporto pubblico
Parco di Centocelle
Parco di Centocelle
140 m
Mirti
Mirti
580 m
Centocelle
Centocelle
490 m
Balzani
Balzani
1,3 Km
Centocelle
Centocelle
490 m
Ricariche auto elettriche Ricariche auto elettriche
Eneldrive Autorimessa Primula
800 m
Esselunga Prenestino
2,4 Km
Eneldrive Cinecittà
2,5 Km
YouGo Prenestina | EnelX
2,8 Km
Scuole Scuole
Scuole
90 m
scuola elementare Fausto Cecconi
460 m
scuola elementare Renzo Pezzani
510 m
Scuola Primaria F. De Sanctis
1,1 Km
Collegio Universitario Lamaro-Pozzani
1,5 Km
Farmacia Farmacia
Farmacia
160 m
Farmacia Dr. Eletti
360 m
Ortopedia Ronconi
820 m
Farmacia Tanzini
930 m
Farmacia dei Gelsi
1,4 Km
Ospedali Ospedali
Ospedali
830 m
Farmacia Berna
1,6 Km
Ambulatorio Policlinico Casilino – Edificio D
1,9 Km
Policlinico Casilino
2,0 Km
Casa di riposo Bruno Buozzi
2,0 Km
Supermercati Supermercati
Tuodì Camelie
270 m
Lidl Casilina
460 m
Todis
760 m
Eurospin
800 m
Superconti Roma Sisenna
930 m
Negozi Negozi
Acqua e farina
330 m
Pane Zucchero e Sale
810 m
Dimensione Outlet
980 m
Orian intimo
1,0 Km
Sonya e Giò
1,0 Km
Bar Bar
Bar Delle Favole
160 m
Bar Pasticceria Rosticceria Tavola Calda
1,1 Km
Bar la Fenice
1,2 Km
Bar
1,2 Km
Black Out Rock Club
1,2 Km
Ristoranti Ristoranti
Atlas
210 m
Pizzeria Romana
390 m
180g Pizzeria Romana
410 m
Buone Maniere
510 m
Mabe cucina spontanea
600 m
Mostra tutto

Caratteristiche

Rif.:
61150896
Piano:
1 di 4 (Piano medio)
Balconi:
1
Camere da letto:
1
Arredamento:
Completo
Condizionamento:
Assente
Mostra tutto
Prezzo Prezzo
€ 149.000
Rata mutuo Rata mutuo
€ 702 / mese
Spese annue Spese annue
€ 400
Proponi il tuo prezzoProponi il tuo prezzo

Classe Energetica

G
G
G
G
G
G
G
G
G
EP globale non rinnovabile:
189.00 kW h/m² anno
EP globale rinnovabile:
189.00 kW h/m² anno
EP invernale del fabbricato:
EP estiva del fabbricato:
Anno di costruzione:
1970
Riscaldamento:
Autonomo
Tipo impianto:
A radiatori
Tipo alimentazione:
Metano

Ti interessa visionare l'immobile?

Fissa un appuntamento  Fissa un appuntamento

Richiedi informazioni

Clicca su Leggi per aprire l'informativa
* Questi campi sono obbligatori

Calcola il tuo mutuo

Semplice e senza impegno
Anticipo

( % )
Mutuo

( % )

pochi semplici passi

inserisci i tuoi dati
Questionario completato
Grazie per aver richiesto un appuntamento senza impegno con un nostro Consulente del Credito e Assicurativo.

Hai inserito correttamente tutti i dati necessari e a breve riceverai una e-mail con un link da convalidare per inviare i tuoi dati.
Affiliato
Mediazioni Alessandrino 2 Srl
Viale Alessandrino, 233 00172 Roma (RM)

Il nostro staff


  • Adam Bourzaim
    Collaboratore

  • Ayoub Bourzaim
    Collaboratore

  • Maichel Di Guglielmo
    Collaboratore

  • Luca Pelfini
    Affiliato

  • Alessandro Pinna
    Responsabile

  • Aisha Perra
    Coordinatrice

  • Gianluca Scipioni
    Collaboratore
Viale Alessandrino, 233 00172 Roma (RM)
Zona: Alessandrino
Mostra su mappa
Orari: Dal Lunedì al Venerdì 09:30 - 13:00 / 15:30 - 20:00. Sabato 09:30 - 13:00 / 15:30 - 18:30
Affiliato
Mediazioni Alessandrino 2 Srl
Viale Alessandrino, 233 00172 Roma (RM)

2026 Tecnocasa Franchising S.p.A. - P. IVA 08365160152 - Via Monte Bianco 60/A 20089 Rozzano (MI). Ogni agenzia ha un proprio titolare ed è autonoma. Privacy policy | Policy utilizzo | Cookie policy